Chain House Lane, Whitestake, PR4 4LD
Virtual Tours
Summary
Property Features
- Individual detached property
- Versatile accommodation and business opportunity
- Five bedrooms plus annex
- c 4 acres of land
- Over 3,000 square feet
- Video & virtual tour
Description
Full Details
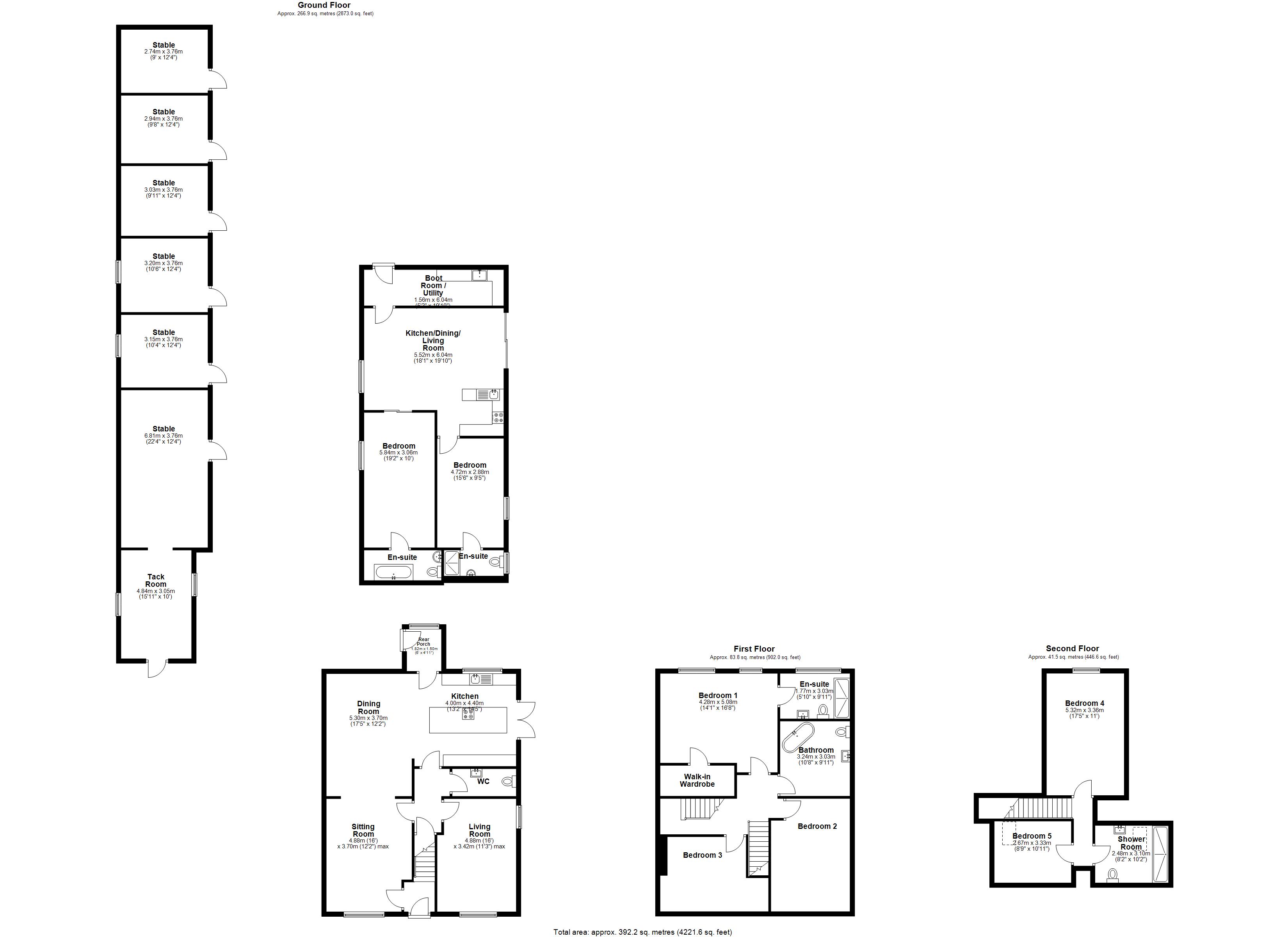
Tavistock is an individual detached property set in c four acres of grounds with fantastic versatility not just as a family home with over 3,000 square feet but also presenting opportunities for equestrian use, multi generational living and business accommodation.
To the front, the driveway offers ample parking, including for a caravan or motorhome, and leads to the yard to the rear and to the main entrance. Step into the hallway and from there to the living room with Karndean flooring. which flows through much of the ground floor, and benefits from wood burning stove. The open plan space continues to the dining area, also with wood burning stove and patio doors to the rear, and into the kitchen comprising a range of wall and base units with central island and quartz work surfaces, range cooker, refrigerator & freezer, dishwasher and microwave.
Completing the ground floor are the sitting room with media wall and feature electric fire, cloakroom comprising wc and wash hand basin on vanity, and rear porch with stable door, the perfect place to decant muddy children and pets.
Stairs lead up to the first floor landing with the master bedroom overlooking the land to the rear and having walk in wardrobe and en suite comprising rainfall mixer shower in cubicle, ladder heated towel rail, wc and wash hand basin on floating vanity. There are two further double bedrooms, one of which is enjoying life as a gym, supported by the sumptuous family bathroom comprising free standing double ended bath, wc, teardrop wash hand basin on vanity and two ladder heated towel rails.
Stairs lead up to the second floor landing which could make a fabulous suite in its own right with bedrooms four and five enjoying lovely views out and the bathroom comprising tiled flooring and elevations, bench seat, wc, shower, floating wash hand basin and towel rail.
Step outside into the rear livery yard with EV charging point, large tack room and six stables all waiting for their next occupants. A self contained annex has, in the past, been used as a holiday let, but would be a perfect guest suite or suitable for additional family members and comprises two double bedrooms both with en suite, gorgeous living room, kitchen area and entrance hallway/boot room. A separate garden is adjacent to the annex.
Stroll through the training ring and from there to two further fields culminating in the lower field with lodge and small copse with a variety of waterfowl and wildlife making this the perfect evening stroll.
Whether you are seeking a place to work from home, equestrian facilities or just your own slice of the beautiful Lancashire countryside then Tavistock has plenty to offer both inside and out so do give us a call to arrange a viewing and make it yours. Council tax D, EPC C, Freehold.
Map
Floorplans
EPCs
View EPCStamp Duty Calculator
Stamp Duty:
Share This Property
You Might Also Like
Bleasdale Close, Leyland, PR25
Spendmore Lane, Coppull, PR7 5BY
Crane Street, Coppull, PR7 5JE






















































