Highfield Road, Croston, PR26 9HH
Virtual Tours
Summary
Property Features
- Stunning period property
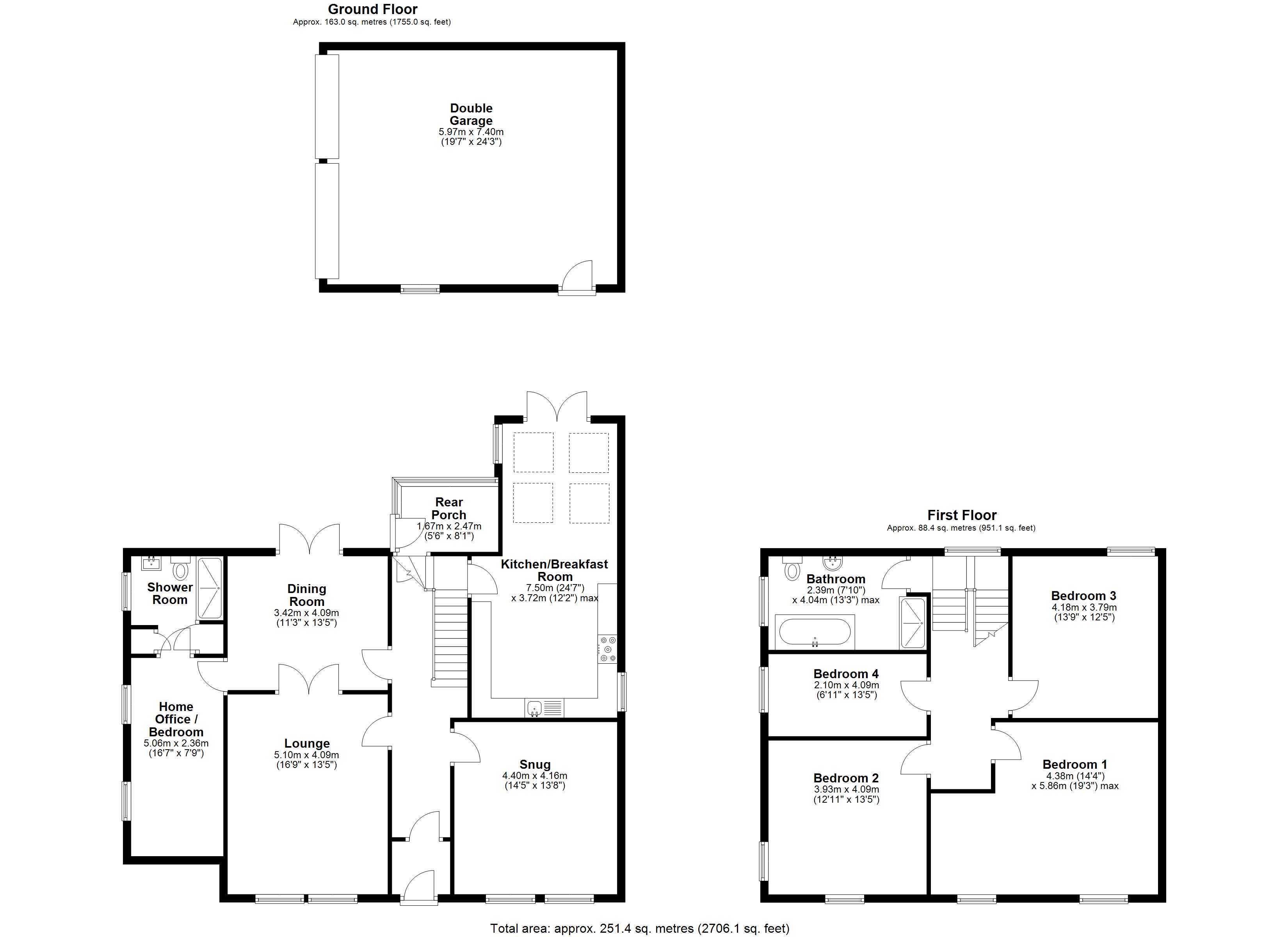
- 2,700 square feet in total
- Opportunity for multigenerational living
- Private southwest facing gardens
- Video & virtual tour
- Beautiful throughout
Description
Full Details
Gorgeous double fronted detached property dating back to the late Victorian early Edwardian period and offering over 2,700 square feet of sumptuous accommodation brimming with character, provenance and original features.
Mature hedging screens the block-paved front garden with private seating area leading to the imposing main entrance. Step into the vestibule and from there to the welcoming hallway with travertine flooring and Lincrusta wall coverings.
To the right is the formal period sitting room with open fire in stone hearth whilst to the left is the living room with a more modern twist, stained glass sash windows and remote controlled inset electric fire.
Double doors lead to the dining room, with patio doors to the garden, and from which this element of the property could be a discreet annex with home office/bedroom five leading off, adjacent to an en suite comprising rainfall mixer shower in walk in cubicle, wash hand basin and vanity unit, wc, ladder heated towel rail and Ideal central heating boiler.
Completing the ground floor is the dining kitchen and the heart of the home with plenty of space for both dining and comfortable furniture under a vaulted ceiling, and the kitchen area, comprising Belfast sink and a range of wall and base units with central island all topped with blue black Brathay slate from The Kirkstone Quarry in the Lake District. Integrated appliances include five burner gas hob, Neff double oven and grill, dishwasher and refrigerator by Bosch with space, power & plumbing for additional appliances. Folding French windows give access to the rear patio. A boot room/rear porch also gives access to the rear gardens and patio.
Step outside into the delightful southwest facing walled garden with expansive lawn, two Indian Sandstone patios, on which you can relax and entertain, and access to the larger than normal double garage with twin electrically operated doors opening to the cobbled driveway with space for up to three cars, and EV charging point. From there, a short shared private driveway leads to Highfield Road.
Back inside, stairs with mezzanine lead to the first floor landing with access to 4 bedrooms, a family bathroom and the boarded loft. Bedroom one is luxurious and elegant with fitted robes with the remaining three bedrooms all able to accommodate a double and overlooking either the garden or the village. The spacious family bathroom comprises a very sociable double ended bath, rainfall mixer shower in cubicle, wc, wash hand basin and ladder heated towel rail. The loft has existing planning permission for conversion, and is fitted with Velux electrically operated Heritage style roof lights
This gorgeous property is a first class family home with the option to support multi generational living in the heart of Croston. Do give us a call to arrange a viewing and make it yours. Council tax G, EPC D, Freehold.
Map
Floorplans
Stamp Duty Calculator
Stamp Duty:
Share This Property
You Might Also Like
Laurel Gardens, Farington Moss, PR26 6BH
Windsor Road, Eccleston, PR7 5SG
The Green, Eccleston, PR7 5SA


















































