Robin Hood Close, Mawdesley, L40 2RG
Virtual Tours
Summary
Property Features
- Stunning new build
- Three double bedrooms
- Gorgeous views to the rear
- Versatile accommodation
- Exclusive bespoke development
- No chain
Description
Full Details
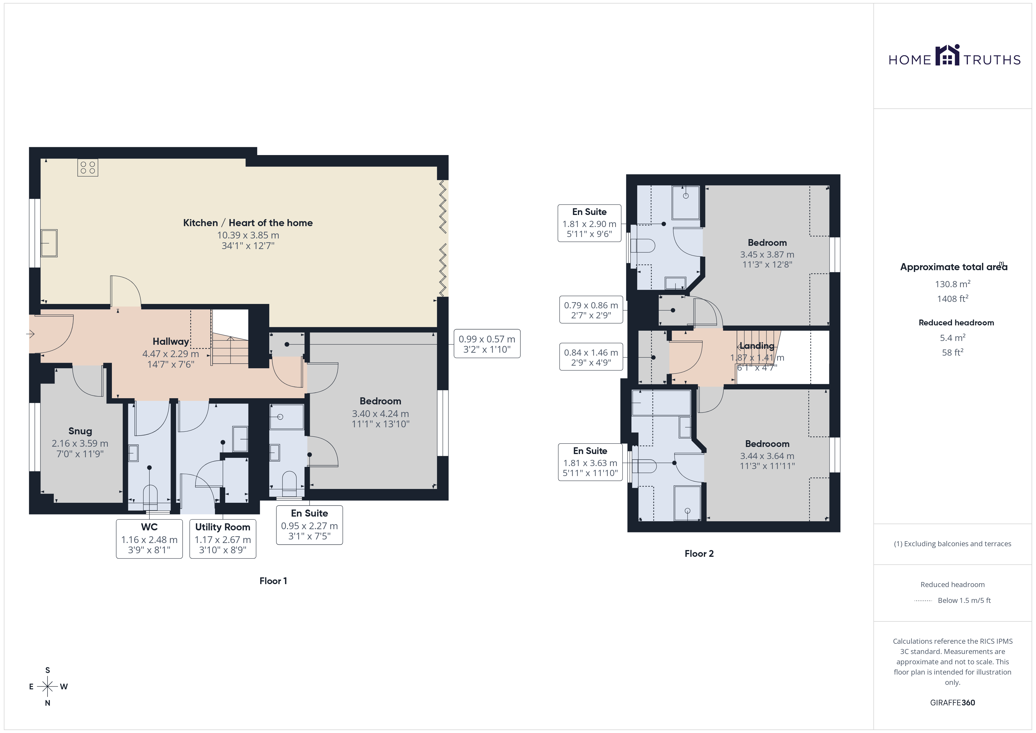
Stunning, spacious, individual detached property, one of only five on this exclusive development, with views out over fields and trees. With c 1400 square feet of versatile accommodation this is a perfect place to call home.
Step into the wide and welcoming entrance hallway with luxury vinyl tile flooring which flows through most of the ground floor which benefits from underfloor heating. To the left is the stunning heart of the home with lantern and bifolding doors for plenty of natural light and views over open countryside, ample space for both dining and comfortable furniture and kitchen comprising a range of wall and base units with central island and topped by granite work surfaces and splashbacks with etched drainer. Integrated appliances are by Neff and include induction hob, multi oven, oven and grill, refrigerator, freezer and dishwasher.
To the right of the home is the snug/home office. The ground floor also comprises of the utility/boot room with separate external access granite work surfaces with etched drainer, and cloakroom comprising wc, wash hand basin on floating vanity, and airing cupboard with hot water tank. Completing the ground floor is the principal bedroom with en suite comprising wash hand basin on floating vanity, tiled elevations and flooring, wc and rainfall mixer shower in cubicle.
Externally the garden is west facing, offering ample space to relax and entertain with family and friends alike, and looks out over open countryside.
Back inside, to the first floor are two double bedrooms both with en suite and both enjoying views over open countryside.
In terms of economic use of energy there is underfloor heating throughout the ground floor and radiators to the first floor all provided by air source heating.
Do give us a call to arrange a viewing and make this yours. Council tax & EPC to follow, Freehold.
Map
Floorplans
Stamp Duty Calculator
Stamp Duty:
Share This Property
You Might Also Like
Manor House Close, Leyland, PR26 7TX
Woodhart Lane, Eccleston, PR7 5TB
Birchwood Drive, Coppull, PR7




























