Wood Lane, Heskin, PR7 5NU
Virtual Tours
Summary
Property Features
- Lovely modern mews property
- Three bedrooms
- Two designated parking spaces
- Virtual tour
- c 800 square feet of accommodation
- Available with no upward chain
Description
Full Details
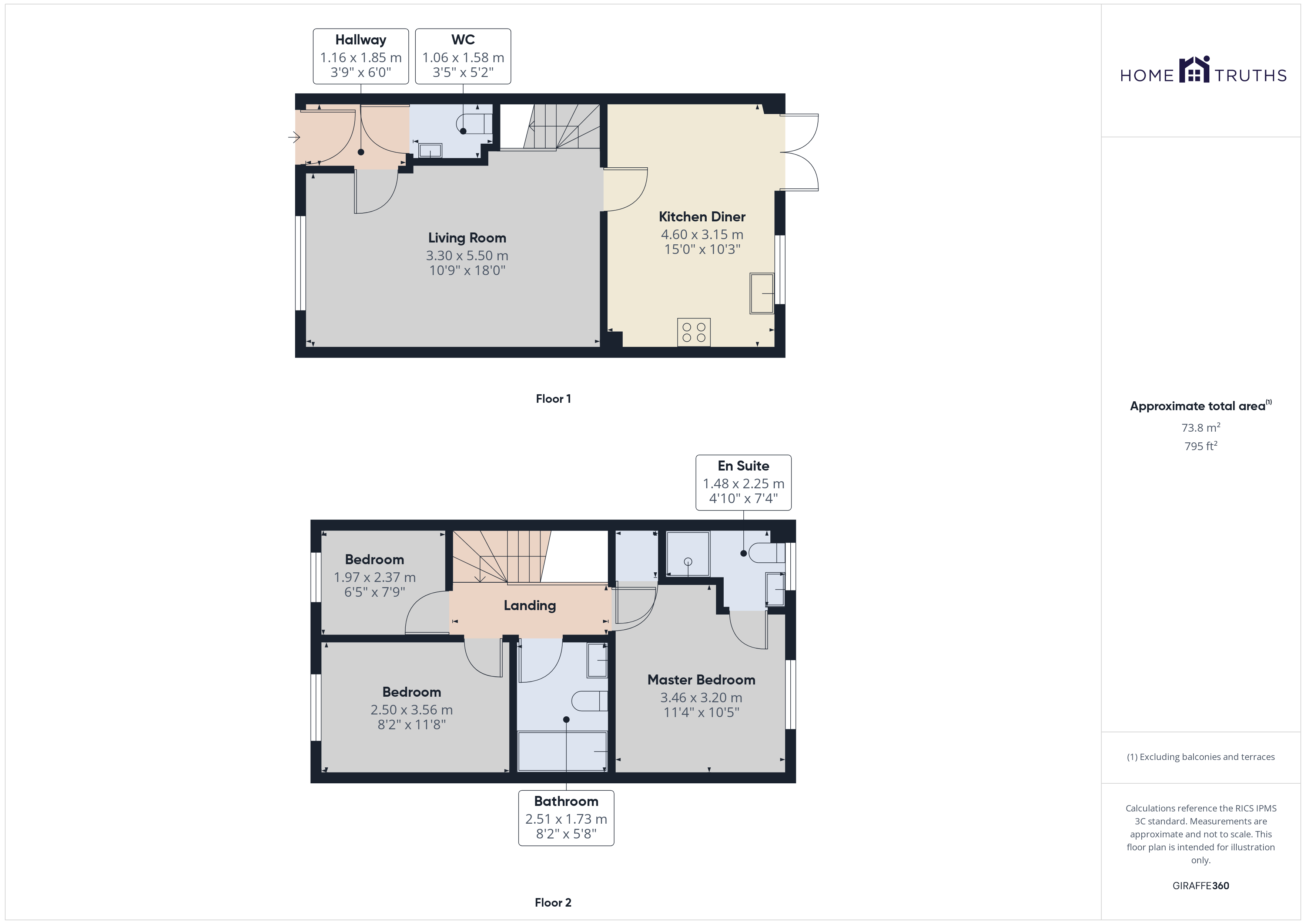
Three bedroom modern mews property within easy reach of local amenities, schools and primary transport links. With c 800 square feet of accommodation this family home is available with no upward chain.
Stroll from the car park with two designated parking spaces, through the front garden to the main entrance and step into the welcoming hallway with cloakroom off comprising wc and wash hand basin. The large, well proportioned living room is to the front whilst to the rear, the dining kitchen comprises arrange of wall and base units with gas hob, electric oven and grill, refrigerator, freezer, dishwasher and space, power & plumbing for additional appliances.
Patio doors open out to the sun terrace in the west facing garden which benefits from a lazy lawn, shed and access to the car park.
Back inside, stairs lead to the first floor landing with bedroom one to the rear having built in storage, housing the Worcester combi boiler, and en suite comprising mixer shower in cubicle, wash hand basin and wc. Bedroom two is a double and bedroom three a comfortable single both to the front with views over trees, and the family bathroom comprises bath with screen and mixer shower over, wash hand basin and wc.
Do give us a call to arrange a viewing and make this your perfect home. Council tax B, EPC B, Leasehold.
Map
Floorplans
EPCs
View EPCStamp Duty Calculator
Stamp Duty:
Share This Property
You Might Also Like
Darwen Fold Close, Buckshaw Village, PR7 7DT
Arundel Way, Leyland, PR25 4YQ
Coppull Moor Lane, Coppull, PR7 4LL





















